Hans Bowden / Lethbridge Real Estate.com

605 21 Street N, House for sale in Westminster Lethbridge , Alberta , T1H 3R4

 MLS® # A2303262

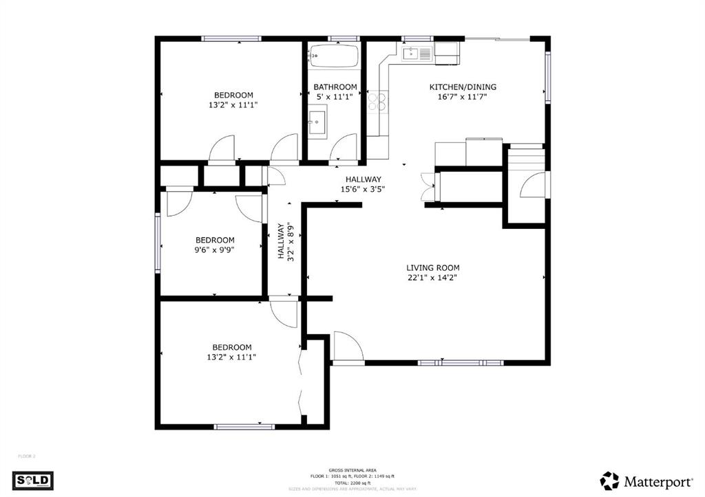
6 bedrooms

2 bathrooms

1,149 sqft

Sign up to View

Days on Market

Welcome to 605 21 St N in Lethbridge — a beautifully renovated 1960 home that has been completely modernized into a stunning 6-bedroom, 2-bathroom property. This home is truly move-in ready, with extensive upgrades throughout including all new windows, furnace, hot water tank, kitchen and appliances, lighting, electrical panel, flooring, doors, bathrooms, plumbing, cabinetry, roof, and much more. Thoughtfully redesigned with both style and functionality in mind, the layout is ideal for a growing family or ...

Read More

Essential Information

  • MLS® #
    A2303262
  • Full Bathrooms
    2
  • Year Built
    1960
  • Property Type
    Detached
  • Property Style
    Bungalow
  • MLS® #
    A2303262
  • Full Bathrooms
    2
  • Year Built
    1960
  • Property Type
    Detached
  • Property Style
    Bungalow
  • MLS® #
    A2303262
  • Full Bathrooms
    2
  • Year Built
    1960
  • Property Type
    Detached
  • Property Style
    Bungalow

Community Information

  • Postal Code
    T1H 3R4
  • Postal Code
    T1H 3R4
  • Postal Code
    T1H 3R4

Services & Amenities

  • Parking
    Alley Access
    Driveway
    Off Street
  • Parking
    Alley Access, Driveway, Off Street
  • Parking
    Alley Access
    Driveway
    Off Street

Interior

  • Floor Finish
    Carpet
    Vinyl Plank
  • Heating
    Central
    Natural Gas
  • Interior Feature
    Sump Pump(s)
  • Floor Finish
    Carpet, Vinyl Plank
  • Heating
    Central, Natural Gas
  • Interior Feature
    Sump Pump(s)
  • Floor Finish
    Carpet
    Vinyl Plank
  • Heating
    Central
    Natural Gas
  • Interior Feature
    Sump Pump(s)

Exterior

  • Lot/Exterior Features
    Balcony
  • Roof
    Asphalt Shingle
  • Construction
    Vinyl Siding
    Wood Frame
  • Lot/Exterior Features
    Balcony
  • Roof
    Asphalt Shingle
  • Construction
    Vinyl Siding, Wood Frame
  • Lot/Exterior Features
    Balcony
  • Roof
    Asphalt Shingle
  • Construction
    Vinyl Siding
    Wood Frame

Additional Details

  • Zoning
    R-L(W)
  • Zoning
    R-L(W)
  • Zoning
    R-L(W)

$489,000

605 21 Street N

Schedule Tour
Contact Agent

$2227/month
Est. Monthly Payment
$
$
%
Learn More